and get regular resort news and hear about exclusive offers and deals
Chalet Rikiki Courchevel
Sleeps up to 22 (22)
- *
- *
- *
- *
A week in Rikiki is what we believe chalet holidays are all about: great piste-side location, comfortable ensuite bedrooms and a lively atmosphere with likeminded people sharing stories around the dinner table!
Rikiki is close to the nursery slopes and was built to a superb modern design, giving all 12 bedrooms ensuite bathroom facilities with either bath or shower.
The double height ceiling makes the lounge and dining area bright and spacious, especially as the French windows open onto a large piste-side terrace. A large open log fireplace adds to the cosy atmosphere in the lounge.
The chalet was built - and is still owned by - a local family with the classic mix of winter time ski instructors and summertime builders. They clearly have a sense of humour too - Rikiki is enormous but in French slang it means "absolutely tiny".
To access the pistes, grab your skis from the boot room and walk up the side of the chalet, across the snow and you’ll be on the nursery slope less than a minute's ski to the main lift.
You can also ski back right onto the terrace of Rikiki.
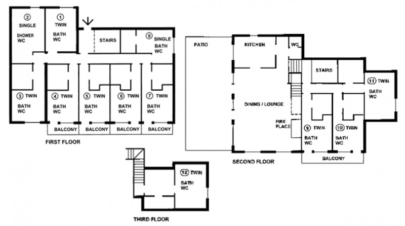
Layout
Room 1 - Twin, bath, WC
Room 2 - Single, shower, WC
Room 3 - Twin, bath, WC
Room 4 - Twin, bath, WC
Room 5 - Twin, bath, WC
Room 6 - Twin, bath, WC
Room 7 - Twin, bath, WC
Room 8 - Single, bath, WC
Room 9 - Twin, bath, WC
Room 10 - Twin, bath, WC
Room 11 - Twin, bath, WC
Room 12 - Twin, bath, WC
Location
To access the pistes, grab your skis from the boot room and walk up the side of the chalet, across the snow and you’ll be on the nursery slope less than a minute's ski to the main lift.
You can also ski back right onto the terrace of Rikiki
Facilities
- Hot Tub
- Terrace
- Fireplace / Stove
- Wifi
- Close to Slopes / Lift
- Balcony
- Close to Centre
- Good for Groups
What's Included
This catered chalet runs Sunday to Sunday.
Chalet Board Includes:
Breakfast each morning with continental and cooked/hot options on 5 of the mornings and continental self-serve on the other 2 mornings
Afternoon tea of cakes, bread, jams, tea and coffee
Evening Meal - a three course meal with complimentary red, white and rose wine served throughout dinner, coffee and mints on 5 of the nights. Cheeseboard served on one night of the week.
Champagne reception with canapés on the first evening. Canapés and sparkling wine ("méthode Champenoise") on every other catered evening.
Your Chalet Host has two days off during the week (usually Tuesday and Friday). We will lay out continental breakfast and afternoon tea to help yourself.
In the evening, it’s a great chance to sample the local cuisine and your Guest Services Manager in resort will be happy to make a restaurant reservation for you.
House wines in 2024-25 were:
Whites
IGP Sauvignon "Grand Terroir"
IGP Chardonnay "Grand Terroir"
Roses
IGP Terres du Midi "Esprit du Sommet"
IGP Cinsault "Grand Terroir"
Reds
IGP Syrah "Grand Terroir"
AOP Cotes du Rhone "Partides"
Please note: IGP and AOP are indications of quality and origin in French wines.
If you’re looking for an extra special treat we also have an upgrade Wine Lover’s Package. We have options for winter 2025-26 with packages starting at £60.
Special diets
If there’s anything you’d rather not eat, whether for moral, sensory or digestive reasons, please let us know before you travel.
Children
We can serve dinner early for your youngsters who will likely be worn out after a day in the snow.
Your Chalet Host will prepare home-made, nutritious and fun dinners the kids will love! Please let us know if you would like early dinner times or have special requests
Bath and hand towels - these are changed midweek
Hair dryer and UK extension lead. You'll find them in your bedroom.
Resort staff's services. Your chalet host will make your chalet a home from home for the week. Guest Services manager is on hand to answer any queries and make restaurant bookings.
Taxe de sejour, other French taxes & VAT of approximately £50. Taxes for UK & EC departure, arrival, airport & security taxes: approximately £50 - All included
WiFi We don't charge extra for WiFi in any of our chalets. Please note however that bandwidth in the mountains is not as powerful as we may expect in the UK. Neither is the amount you can download necessarily unlimited. Please consider fellow guests when downloading. Bandwidths are frequently upgraded by resorts and we will continue to lobby for service improvements.
Return flights (with airport transfers) from London Gatwick or Manchester to Chambery are available.
